广州广兴三友环保设备有限公司
公司简介
发酵罐设备
产品规格
现代化生产设备
案例展示
联系我们
发酵罐设备
规格参数
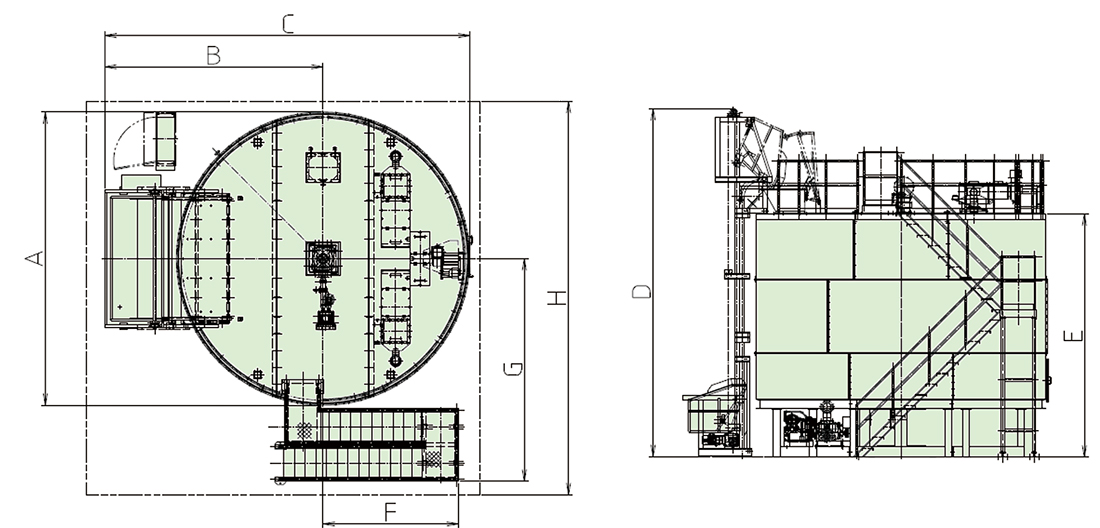
尺寸参数
型号/尺寸
A
B
C
D
E
F
G
H(安装面积)
SK-100
6060
4510
7540
7220
5030
4230
3375
8000×8500
规格参数
型号/单位
频率(Hz)
槽容积(m³)
油压源(kw)
上送风(kw)
下送风(kw)
排气(kw)
应急加热器(kw)
SK-100
50
100
7.5
2.2
15
0.75
4.0